Organized Takeoffs, Precision Measurements: A Game-Changing Solution for QS.
As a Quantity Surveyor (QS), how can we quickly generate accurate Bills of Quantities? Traditional methods require manual tracing, measuring, recording, and consolidating data into spreadsheets-a process that is both tedious and highly prone to errors. With PlanForm, these challenges are effortlessly resolved.

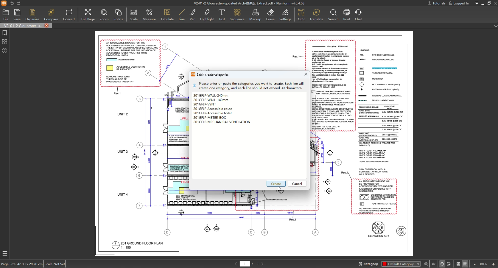
Before starting your measurements, create batch categories based on attributes like "Specification," "Material," or "Zone." All measurement and counting results will be automatically organized into these predefined categories.


Now, let’s begin measuring. Start by selecting the Preset Scale function to uniformly calibrate the drawing based on its designated scale.

Use the Continuous tool to quickly measure linear elements-for example, a 240mm wall. Results are displayed in real time and automatically logged under the category “201 ground floor plan-wall-240mm.”

Use the Auto fill tool to measure irregularly shaped areas, such as an accessible route, to instantly obtain accurate perimeter and area values. These are automatically recorded under “201 ground floor plan-Accessible Route.”

Use the Search function to quickly count specific equipment-like electrical meter boxes-and instantly get the total number for the entire floor. All results are automatically categorized under “201 ground floor plan-Meter Box.”

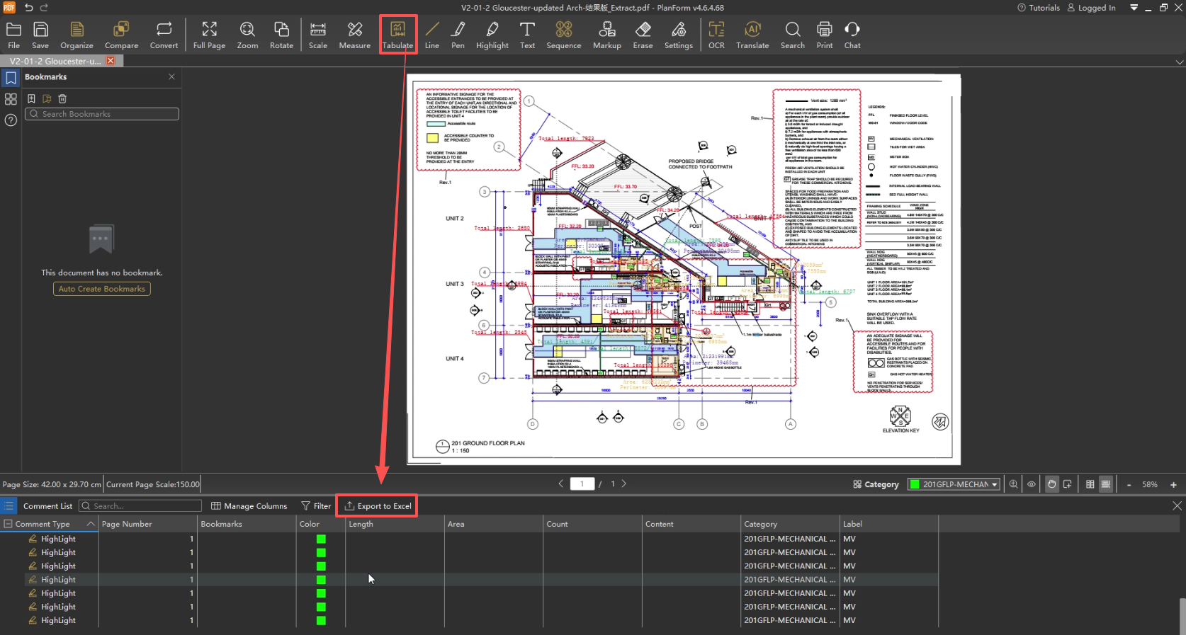
Once all measurements are completed, export all data to Excel with a single click.

PlanForm empowers every Quantity Surveyor. Try it now-and drive your project’s success with precision and efficiency.