플랜폼(PlanForm) 모바일 – PDF 도면 저장 및 공유 방법
지금 바로 PlanForm을 다운로드하세요!
Google Play 스토어: https://play.google.com/store/apps/details?id=com.everdrawing.planform
App Store: https://apps.apple.com/kr/app/planform/id6748180587
공식 웹사이트: https://pdf.fastcadreader.com/
확인해야하는 PDF 도면을 열어주세요!
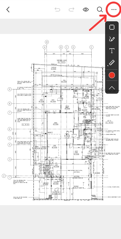
도면 우측 상단 더보기를 클릭하세요.

그러면 파일 저장, 다른 이름으로 저장, 그리고 공유 기능을 확인하실 수 있습니다.
다른 이름으로 저장을 하면 도면 위 추가한 주석과 함께 휴대폰 내 원하는 위치에 파일을 저장할 수 있습니다.

공유를 선택하면 카카오톡, 문자, 이메일 등 다양한 방법으로 다른 사람에게 PDF 도면 파일을 공유할 수 있습니다. 도면 위 추가한 주석들도 함께 공유할 수 있습니다.

지금 바로 PlanForm을 다운로드하세요!
Google Play 스토어: https://play.google.com/store/apps/details?id=com.everdrawing.planform
App Store: https://apps.apple.com/kr/app/planform/id6748180587
공식 웹사이트: https://pdf.fastcadreader.com/
