DWG 도면 파일을 PDF 파일로 어떻게 변환하나요?
PDF로 변환할 도면 파일을 열고, 오른쪽 상단의 메뉴를 클릭하세요.
‘내보내기’를 선택하세요.

PDF 내보내기를 클릭하세요.

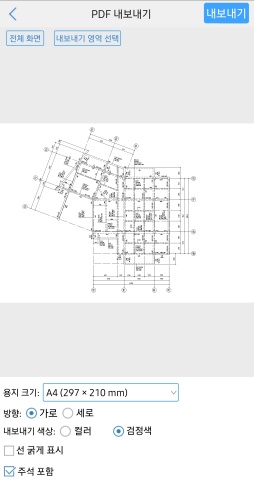
용지 크기, 방향, 색상 등을 설정해 주세요.

PDF 파일 이름을 입력해 주세요.

이제 PDF 파일이 생성되었습니다. 바로 확인하고 공유해 보세요!


지금 바로 CAD Reader를 다운로드하세요!
Google Play 스토어: https://play.google.com/store/apps/details?id=com.glodon.drawingexplorer
App Store:
https://apps.apple.com/kr/app/cad-reader-view-measure-dwg/id878550740
공식 웹사이트:
https://dwg.fastcadreader.com/
📞 기술 문의 & 고객지원
궁금한 점이 있으시면 언제든지 이메일로 편하게 문의해주세요!
이메일: cadreaderservice@gmail.com
📚 튜토리얼 영상 및 활용 팁 보기
YouTube: https://www.youtube.com/@cadreader
TikTok: https://www.tiktok.com/@cadreader_official