플랜폼(PlanForm) 모바일 – 측정기능 PART1(스케일 설정, 길이 측정)
PlanForm Korea
안녕하세요!
PlanForm Korea입니다.
오늘은 PlanForm 모바일 버전에서 스케일을 설정하고 길이 측정, 연속 길이 측정 기능에 대하여 소개해 드리겠습니다!
지금 바로 PlanForm을 다운로드하세요!
Google Play 스토어: https://play.google.com/store/apps/details?id=com.everdrawing.planform
App Store: https://apps.apple.com/kr/app/planform/id6748180587
공식 웹사이트: https://pdf.fastcadreader.com/

다양한 건설 프로젝트에서 PDF 도면을 주고받는 경우가 많습니다. PDF 도면을 열었을 때 가장 먼저 할 일은 스케일을 맞추는 것입니다. PDF 파일은 출력 크기나 저장 방식에 따라 실제 축척과 달라질 수 있기 때문에, 기준이 되는 치수를 확인하고 스케일을 설정해야 합니다. 한 번만 스케일을 맞춰두면 그 이후 측정하는 모든 값들이 실제 크기로 자동 환산되기 때문에 훨씬 신뢰할 수 있습니다.
스케일이 설정된 상태에서 길이 측정 도구를 사용하면, 벽체의 두께 같은 세밀한 부분부터 기둥 간격이나 복도 폭처럼 주요 구조까지 정확하게 길이를 잴 수 있습니다. 특히 연속 길이 측정 기능을 활용하면 여러 구간을 이어서 한 번에 측정할 수 있어, 예를 들어 긴 배관 경로나 전기 배선의 총 길이를 계산할 때 매우 편리합니다.
만약 도면에 표시된 치수와 직접 측정한 값이 다르다면, 다시 스케일을 수정해 전체 도면에 반영할 수 있습니다. 덕분에 치수 오류나 출력 문제로 발생할 수 있는 착오를 줄일 수 있습니다.
PDF도면을 단순히 보는 데서 그치지 말고, 스케일 설정과 길이·연속 길이 측정 기능을 활용해 보세요. 현장에서 필요한 정확성과 효율성을 동시에 확보할 수 있습니다.
사용 방법
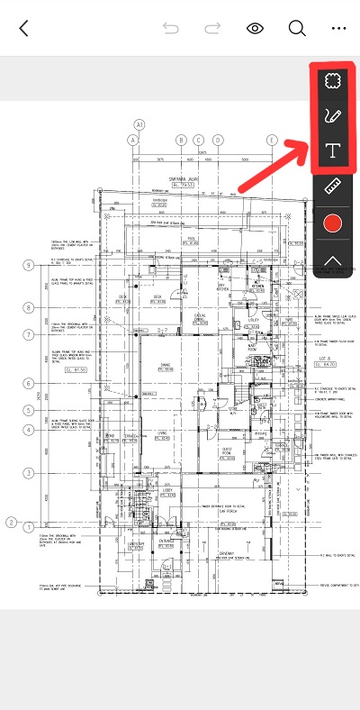
확인해야 하는 PDF 도면을 열어 우측 상단 툴바에 있는 4번째 자 아이콘을 눌러주세요.

여기 5가지 기능 중 3가지 기능의 사용 방법을 알려드리겠습니다.

1. 스케일 설정
화면에 있는 마우스를 드래그해 첫 번째 점과 두 번째 점을 지정하고 실제 길이를 입력해주요. 단위와 정밀도도 함께 설정할 수 있습니다.

2. 길이 측정
화면에 있는 마우스를 드래그해 첫 번째 점과 두 번째 점을 지정하면 자동으로 길이가 측정됩니다.

3. 연속 길이 측정
화면에 있는 마우스를 드래그해 여러 점을 지정하면 자동으로 총 길이가 측정됩니다.

지금까지 PlanForm 모바일의 길이 측정 기능을 소개해드렸습니다.
PlanForm 모바일의 측정 기능을 활용해보세요!
지금 바로 PlanForm을 다운로드하세요!
Google Play 스토어: https://play.google.com/store/apps/details?id=com.everdrawing.planform
App Store: https://apps.apple.com/kr/app/planform/id6748180587
공식 웹사이트: https://pdf.fastcadreader.com/

 
       
        